跳转到主要内容

喜讯!我院分子病理室竣工并交付使用

2019-11-01

    分子病理主要是基于组织、血液、脱落细胞等标本的分子遗传学检测,用于协助病理诊断和分型、指导靶向治疗、预测治疗反应及判断预后等,在疾病的个体化精准诊断和治疗上发挥了越来越重要的作用。

 

    为促进我院病理学科的发展,在院领导高标准建设病理学科的指导思想下,基建处对医技楼3楼病理科功能房进行改造,建设标准化分子病理室,填补了我院前期在这方面的空白,现已竣工并交付科室使用。

 

 

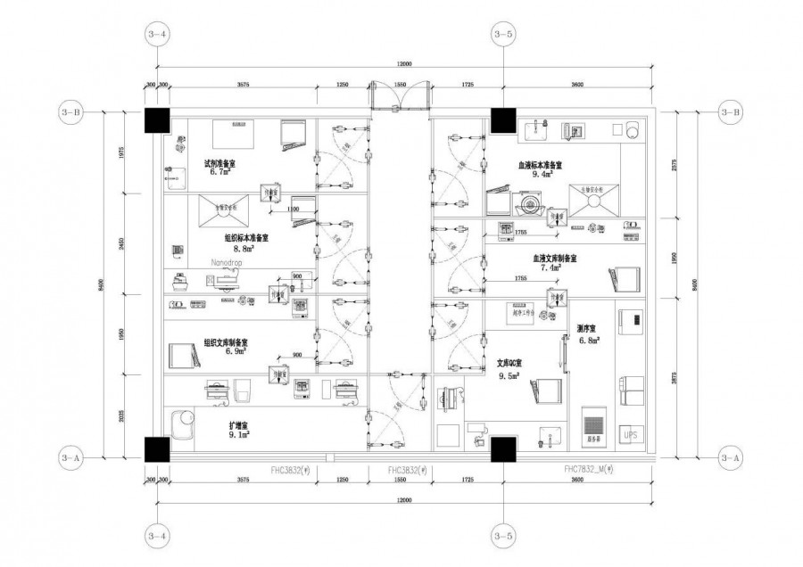
建成后的病理科分子实验室

 

    分子病理室的建设标准高,要符合国家临床检验中心对NGS实验室的设计要求,充分考虑建筑装饰,采光通风,排水、电力、新风冷暖、消毒感控等系统;各功能区域要相对独立,防止交叉污染;内部空间设计需要考虑工作流程、内部沟通和工作效率,尽可能减少气凝胶污染和不合理的人为障碍。同时,还要满足实验人员对环境美观、舒适的感官需求。

 

    亮点一  流线合理,布局紧凑

 

    该项目建设规划区域占地仅96.12㎡,但需要设置试剂准备室、组织标本准备室、组织文库制备室、扩增室、血液标本准备室、血液文库制备室、测序室、超净工作室和文库QC室等9个功能用房,及9个单独的缓冲间。分子病理室的内部设计布局是否合理将直接影响实验室的安全性,甚至影响检验结果的准确性。

 

    建设前期,基建处工作人员对每个功能用房进行设备分类统计和整体人流动线方案模拟,并同使用科室进行详细的沟通,充分了解科室的日常工作过程。后期施工中,基建处再次组织人员对现场进行地面放线,论证人流动线的可行性,最终实现了科室需求与空间整体规划的融合。

 

3.jpg

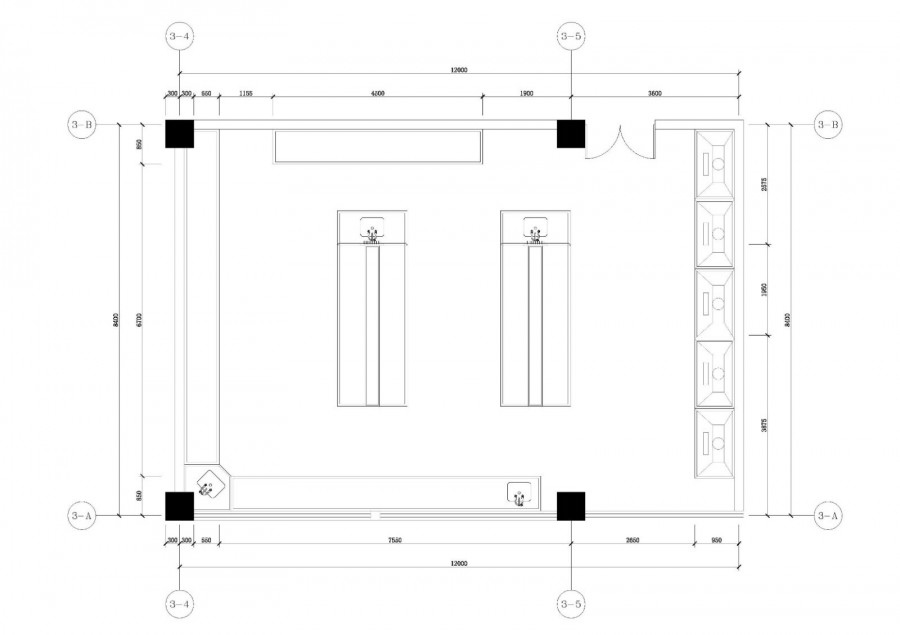
改造前场地布局

4.jpg

改造后场地布局

 

    亮点二  洁净度高,气密性好

 

    通风和密闭系统是分子病理室防止气凝胶污染最重要的保障系统。各房间需保持较高密闭性,并采用独立的送风和排风,设立梯度气压压差,从而减少空气在不同房间的交叉流动,最大限度的降低气凝胶污染。因此,分子病理室要满足各个功能用房、缓冲间和过道不同的温度、湿度、压差,以及整体的气密性要求。

 

    经整体洁净度的技术测算,最终拟定墙面、天花用彩钢板进行整体密闭式施工,房间门均采用有严格质地的气密门,天花灯具安装采用气密灯的施工方案。同时,对每个房间的设备安装距离进行反复测算数据模拟调整。进而,整体空间和各个功能分区的气密性和洁净度,使房间与房间之间的温度、湿度、压差保持微妙的平衡,既可以发挥各自作用,又不互相干扰。

 

各功能房压差调试

 

    亮点三  精准布线,一次到位

 

    由于功能房间内设备众多,插座线路密集且安装高度各不相同。为了避免因插座位置不符合使用需求而导致的反复拆改,在施工过程中,基建处工作人员及时跟进现场,与使用科室和施工单位紧密沟通,在预埋线管前进行二次定位,保证线管插座对应设备的准确性。

 

    亮点四  视野宽阔,环境舒适

    

    为了提升各房间内部的通透感和舒适度,减少工作人员在小房间长时间的工作而产生压抑感,经与使用科室沟通,房间与房间的墙面采用大面积的通透密闭玻璃。在提升分子病理室内部美观的同时,也让冰冷的实验室变得更加温暖。

 

房间墙面采用大面积的通透密闭玻璃

 

    分子病理室项目的建设得到了病理科、医务处、后勤处等多部门的大力支持。建成后分子病理室将用于开展血液和组织的基因检测(包括PCR,一代及二代测序),助力我院病理科建成门类最全的病理亚专科,为整个医院的发展以及临床精准治疗提供强有力的支撑。

 

病理科分子实验室改造工程现场验收情况

 

通讯员:王驰

编辑:温志鑫

初审:潘逸航 黄炫霖

审核:江清浩

审核发布:党宣办